Informacje o inwestycji:
Opis
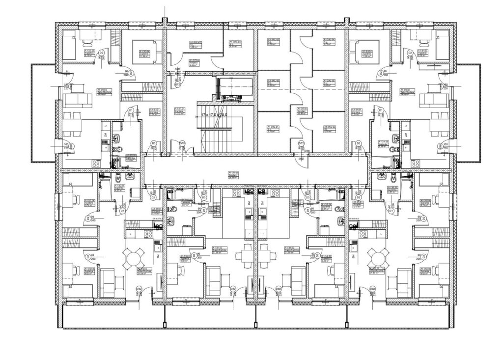
W ramach inwestycji powstanie nowoczesny, czterokondygnacyjny budynek wielorodzinny, który zapewni 𝟮𝟰 𝗺𝗶𝗲𝘀𝘇𝗸𝗮𝗻𝗶𝗮 𝘄𝘆𝗸𝗼𝗻́𝗰𝘇𝗼𝗻𝗲 𝘄 𝘀𝘁𝗮𝗻𝗱𝗮𝗿𝗱𝘇𝗶𝗲 „𝗽𝗼𝗱 𝗸𝗹𝘂𝗰𝘇”. Do dyspozycji mieszkańców będą także: winda obsługująca wszystkie kondygnacje, komórki lokatorskie, wózkownia, utwardzone miejsca parkingowe,zagospodarowana zieleń. Źródłem ciepła dla budynku będzie kocioł gazowy LPG. Odbiornikami ciepła będą grzejniki stalowe płytowe wyposażone w głowice termostatyczne. Przygotowanie ciepłej wody użytkowej
realizowane będzie przez system grzewczy oparty na pompie ciepła powietrze-woda, która wspomagana będzie panelami fotowoltaicznymi. Zagospodarowanie terenu obejmuje również wykonanie Carportu jako wolnostojącego dwustanowiskowego punktu
ładowania pojazdów elektrycznych w postaci stacji Wallbox na słupku.
🏡 𝗦𝘁𝗿𝘂𝗸𝘁𝘂𝗿𝗮 𝗺𝗶𝗲𝘀𝘇𝗸𝗮𝗻́:
8 mieszkań 2-pokojowych – ok. 39 m²
16 mieszkań 3-pokojowych – od 50 do 57 m²
𝘇́𝗿𝗼́𝗱ł𝗮 𝗳𝗶𝗻𝗮𝗻𝘀𝗼𝘄𝗮𝗻𝗶𝗮 𝗶𝗻𝘄𝗲𝘀𝘁𝘆𝗰𝗷𝗶:
• środki SIM
• kredyt SBC
• Fundusz Dopłat
• partycypacja mieszkańców
Galeria





