Informacje o inwestycji:
Galeria
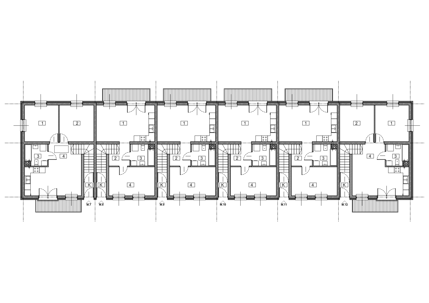
Inwestycja obejmuje realizację nowoczesnego, dwukondygnacyjnego budynku wielorodzinnego, w którym powstanie 12 komfortowych mieszkań: 8 lokali dwupokojowych oraz 4 trzypokojowe.
Powierzchnia mieszkań wynosi od około 43 m² do 53 m². Lokale oddawane są w opcji ,, pod klucz” . Do każdego lokalu przypisana jest zwnętrzna komórka lokatorska oraz miejsce parkingowe. Ogrzewanie: pompa ciepła + panele fotowoltaiczne.
𝘇́𝗿𝗼́𝗱ł𝗮 𝗳𝗶𝗻𝗮𝗻𝘀𝗼𝘄𝗮𝗻𝗶𝗮 𝗶𝗻𝘄𝗲𝘀𝘁𝘆𝗰𝗷𝗶:
• środki SIM
• kredyt SBC
• Fundusz Dopłat
• partycypacja mieszkańców
Galeria







